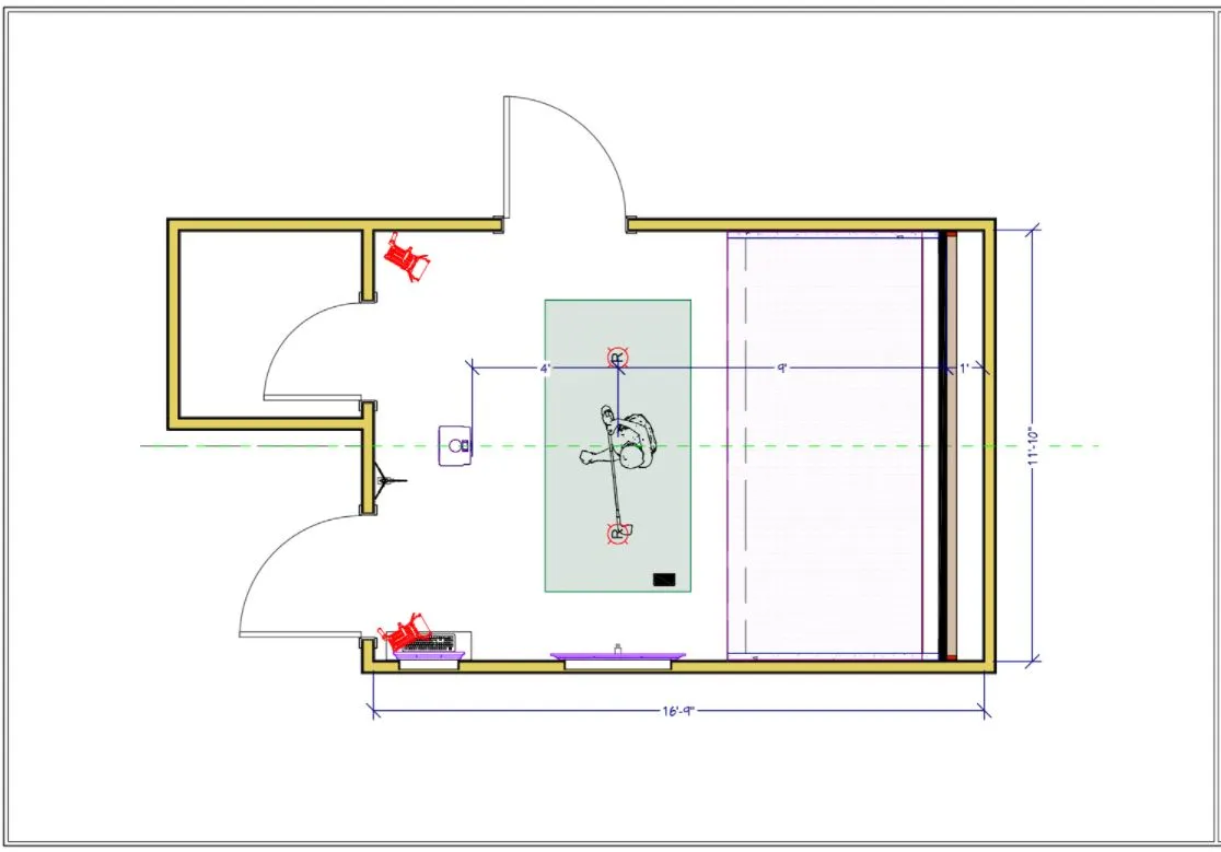
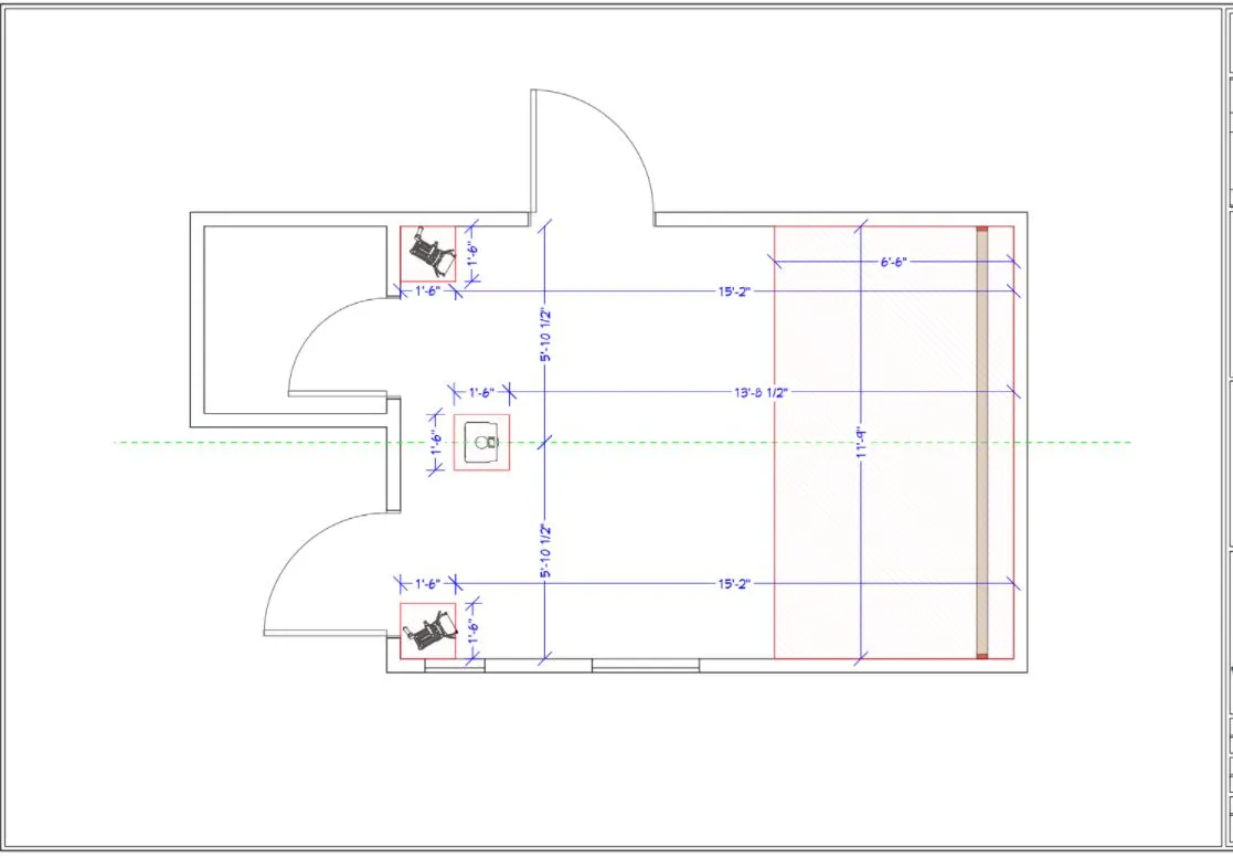
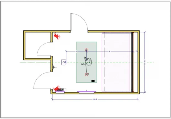
Need some help getting your golf simulator project kicked off? Let the Design2Golf team help you custom design a space that will perfectly fit your room and budget. The process starts with a 45-minute online consultation that will allow our pros to ask you questions to fully understand your vision, plan and intended use of the space. The call will include recommendations on room layout, technology, safety precautions and next steps. Following the call, this information will be sent to our design team who will then create a custom 3D drawing of your simulator room based on the call recommendations. If you are unsure of the best way to orientate your golf simulator or what technology may work best, this is a great way to get started to ensure you don’t make any major mistakes!
Consultation Benefits Include:
- INDUSTRY EXPERIENCE – Consult directly with a D2G professional so we can learn more about your space and help you implement your vision
- TECHNOLOGY CONSULTATION – Learn the pros and cons of technology decisions based on your room and intended uses
- MAXIMIZE SAFETY – Ensure your golf simulator room will minimize potential injury from mishit golf shots
- STAY ON BUDGET – Build a custom project plan that will keep you within your budget
- ROOM OPTIONS – Explore potential options for simulator layouts based on your room space
- FURNITURE – Our team can help with room accessories including furniture recommendations
- MAXIMIZE YOUR SPACE – Let our design team build you a custom concept plan that maximizes your space










